

House
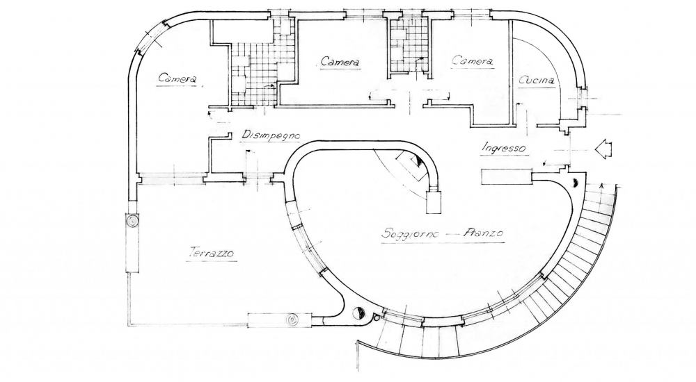
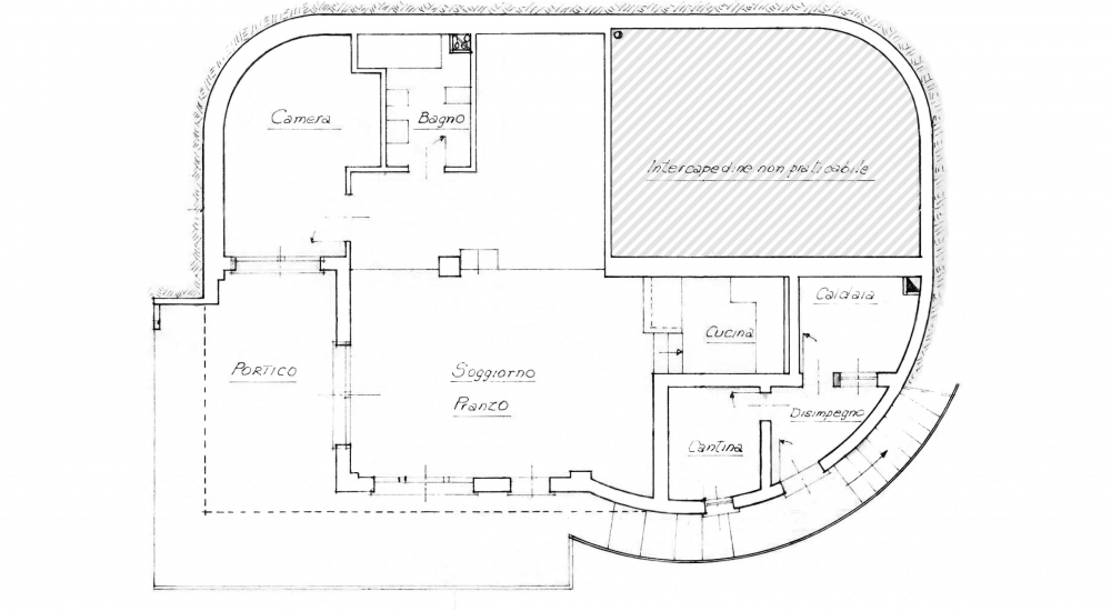
This unique spiral formed house was built in 1976-77 by the Milanese architect who went on to design Malpensa Airport (Terminal 1). It has been in family ownership since its construction and has been lovingly maintained. Strict local laws prohibited the building of property close to Lake Maggiore in the 1970s, making this private residential complex and its facilities unique to the area.
The Bottacchi estate
Around the year 1890, the banker and industrialist Bottacchi chose one of the most beautiful forest and meadow slopes in the central part of Lake Maggiore for the construction of his 6-hectare estate. Being free from all legal and urban planning constraints, the family built a stately villa with several outbuildings and a boathouse directly on Lake Maggiore, all connected by a private road. Farming was also practised on the property, the evidence of which can be seen in the walled terraced slopes, barns and grottos. Many of these structures can still be seen. On this site, surrounded by chestnut forests, the current private residential complex with swimming pool and tennis court was built in the 1970s.















